Exterieur
Exterieur is eigelijk mijn basis categorie samen met interieur. Dit komt omdat als ik een huis of iets dergelijks ontwerp dan ontwerp ik daar ook altijd een passend interieur voor zodat het één geheel wordt. Bij Exterieur moet je niet alleen gelijk denken aan een huis maar ook bijvoorbeeld aan een hotel, vliegveld en etc.
Oude kraan 34-70
Ik was erg geïnspireerd door de masteropleiding architectuur. Ik wil meer verdieping zoeken in de stof van bouwtechniek, zodat ik na het voltooien van mijn huidige opleiding de architectuuropleiding kan volgen met de benodigde skills. Omdat de artistieke kant mij altijd meer heeft aangetrokken wil ik me nu graag gaan verdiepen in de technische kant. Ik vind vooral het pionieren van uit deze 2de minor erg inspirerend en dit motiveert mij om deze kennis tot mij te nemen. Ik heb uiteindelijk besloten om deze minor samen te volgen met de minor bouwtechniek.

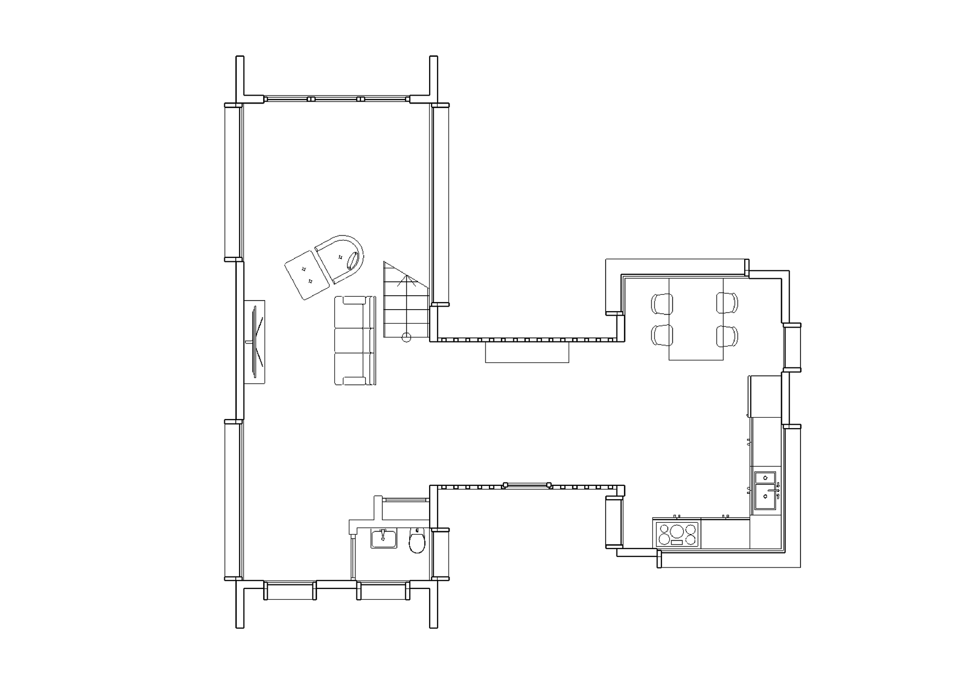
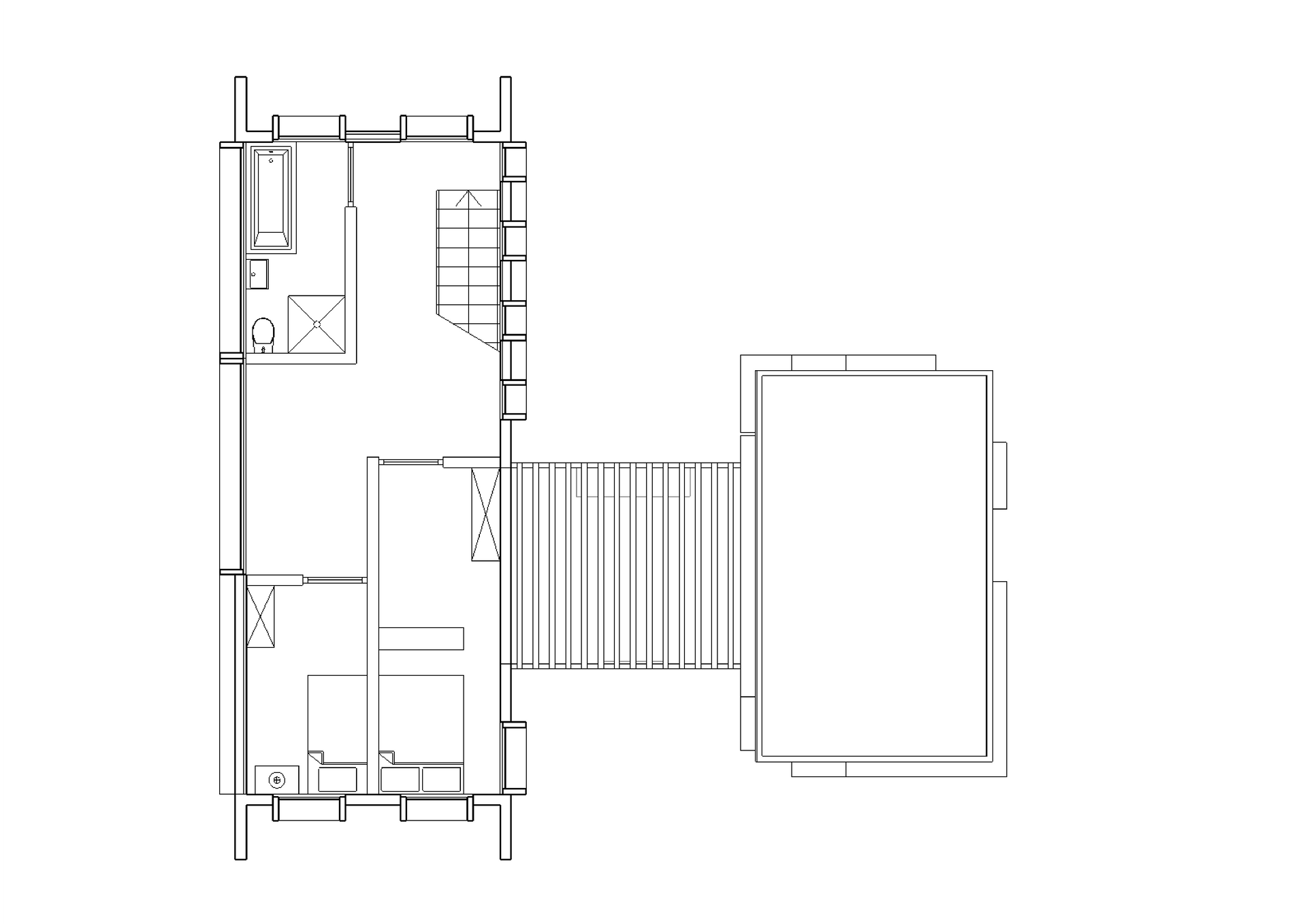
De begane grond, in gebruik door ArtEZ blijft gehandhaafd als creatief bolwerk, de eerste tot en met de vierde verdieping zullen getransformeerd worden tot geschakelde units/woningen.
Het gedeelte boven de begane grond bestaat uit 24 units die omgebouwd worden tot 12 appartementen. Elk appartement zal bestaan uit 2 units. Gezien het creatieve karakter van de wijk
wordt er geen beeldkwaliteitsplan aan de toekomstige ontwikkeling opgelegd. Er is dus veel keuzevrijheid in de uitstraling van de gevel. Belangrijk is dat het pand onderling wordt verdeeld en dat alle bestaande units getransformeerd
worden. Deze verdeling komt tot stand door onderling overleg en zal in week 38 worden vastgelegd.
Coehoorn Centraal heeft vanuit de gemeente de ruimte gekregen om het Coehoorn gebied en omgeving Oude Kraan op een alternatieve manier te ontwikkelen als creatieve wijk. In Coehoorn wordt nieuwe kennis opgebouwd over nieuwe vormen van revitalisering van wijken in een stedelijke omgeving. Daarbij is het ‘vullen’ van leegstand nevendoel. Hoofddoel is de hernieuwde vitaliteit in de wijk. Coehoorn laat ook zien dat een wijk waar meerdere stedelijke functies elkaar versterken, een aantrekkelijker stedelijk milieu opleveren. In een vitale wijk gaan wonen, werken en vermaken samen.

Huis ontworpen door zonlicht
Waarom zou je niet op daglicht ontwerpen dat is toch veel energie zuiniger. Hierbij hou ik rekening met de functionaliteit van elke ruimte. Werkplekken en leefruimtes profiteren bijvoorbeeld van een overvloed aan daglicht, terwijl slaapkamers mogelijk meer gebaat zijn bij verduisteringsmogelijkheden voor een goede nachtrust.

Als ik naar het concept daglicht kijk is het wel iets wat mij uitdagend lijk om mee te nemen als ik zelf huizen ontwerpt dit heeft mij echt op een andere manier laten kijken naar het ontwerpen van huizen. hier wil ik dus een begin mee maken door dus een huis te ontwerpen op de stand van de zon en wat je in welke ruimte doet.
Om dit concept verder te verkennen, ben ik van plan om een huis te ontwerpen waarbij de oriëntatie, de plaatsing van ramen en het gebruik van elke ruimte zorgvuldig worden overwogen in relatie tot de stand van de zon gedurende de dag. Dit ontwerp zal niet alleen esthetisch aantrekkelijk zijn, maar ook een voorbeeld zijn van hoe architectuur kan bijdragen aan een duurzame en gezonde leefomgeving. Hierbij roteren de zonnepanelen op het dak mee met de stand van de zon en de zonnepanelen die op beide schuurtje zitten liggen wel plat.

klein huis
21 Modellen naar een selectie van een top 10 naar een gespecialiseerde keuze van 3 zodat er 1 volledig uitgewerkt wordt wat dan de definitieve keuze is. In sommige regio’s en culturen worden leisteen, koper en hout al eeuwenlang gebruikt in de bouw. De combinatie van leisteen, koper en hout is wel uniek op zichzelf. Leisteen en koper zijn duurzame materialen die bestand zijn tegen weersinvloeden en veroudering. Ze vereisen over het algemeen weinig onderhoud en kunnen tientallen jaren meegaan. Leisteen is een natuurlijk gesteente en koper is een recyclebaar materiaal.

Solarpunk
Ik sta achter het streven naar een toekomst waarin een symbiose bestaat tussen flora, de mensheid, en alle overige levende organismen. Dit geldt zowel op stedelijke schaal als op de fijnmazigere huiselijke schaal. Ik pas hierdoor onze architectuur aan, aan de natuur in plaats van andersom. Denk hierbij aan huizen rond en/of om bomen en flora; hiermee stimuleer je de harmonie tussen natuur en mens. Deze aanpassingen zullen de luchtkwaliteit verbeteren, de biodiversiteit verhogen en het welzijn van de bewoners bevorderen. Hoewel dit aanzienlijke kosten en ruimtebeperkingen met zich meebrengt, geloof ik dat de ecologische en gezondheidsvoordelen opwegen tegen de uitdagingen. Hierbij heeft dit concept de weg naar Solarpunk gekregen.
Living On Water
In de toekomst hebben we minder woonruimte beschikbaar, daarom heb ik een huis ontworpen voor op het water. Daarbij heb ik gedacht aan de manieren om energie op te wekken en water op te slaan wat je dan later weer kan hergebruiken. Hierbij heb ik ook gedacht aan natuurlijke materialen.
Vanaf hier ben ik begonnen met mijn hbo-onderzoek die ik gekoppeld heb naar me pro you ik heb voor hbo-onderzoek gedaan naar animatie en deze heb ik toegepast voor mijn pro you als promotie en informatiefilmpje dit vond ik wel lastig om dat je een geheel nieuw programma leert in een half jaar maar uiterlijk ben ik erg trots op wat ik gemaakt heb.
Hier heb ik een storyboard gemaakt met een script van de dingen die ik wil vertellen in mijn promotie video deze heb ik dan ook bedacht van hoe de scenes eruit komt te zien en hoelang het filmpje ongeveer wordt.
Na de maquette uit geprint te hebben in verschillende kleuren en nadat ik het goed nagekeken had met Cura. Ik had ook sheet gekocht om die te gebruiken voor het glas. Dit was mijn eerste keer dat ik een 3d geprinte maquette gemaakt had en dit kosten mij uiterlijk meer werk dan ik dacht maar hierdoor heb ik wel veel nieuwe handvaardigheid manieren geleed.
Het modulaire dorp
Ik heb een ontwerp gemaakt voor een modulair wandensysteem dat toegepast kan worden op een bestaande locatie, zoals een leegstaand kantoorgebouw of een leegstaand hotel. Met dit systeem kun je snel en gemakkelijk wanden plaatsen. In plaats van ronde ontwerpen heb ik ervoor gekozen om de ronde architectuur te accentueren.
Dit resulteert in een algehele vorm van een soort open kasteel, waarbij je openheid accentueert en tegelijkertijd een connectie creëert door ze aan elkaar te verbinden. Ik heb mijn keuze voor materialen laten beïnvloeden door het genen wat ik geschilderd heb voor de buitenkant en voor de binnenkant.
Dit concept kan ook toegepast worden op een leeg grasveld, waarbij je de 4 wanden met een vloer- en dakonderdeel aan elkaar zet, zodat je het systeem ook zonder een bestaande locatie kunt gebruiken. Na wat vormstudies ben ik tot de ontdekking gekomen dat als je de koepel iets kleiner maakt, je de andere huisjes erop kunt plaatsen.
Voor het samenvoegen van een soort dorp dat vormgegeven is vanuit een kasteel gridset ben ik eerst heel strak gaan ontwerpen door eerst rijtjes te maken maar ik kwam er uiterlijk achter door meer varianten uit te proberen dat als je ze op een heel speelse manier plaats je uiteindelijk meer inclusie creëert tussen de modulaire woning voor zowel vluchtelingen als studenten.
The travelers meets a tea house
Een restaurant in de bommen in een vorm van een hardt. Geeft je een mooie ambiance van de omgeving van uit de hoge boom.

Tea house With Japanese connections. The contexts is in a forest and directly next to a city. The usability is for people to meet each other. The amount of is one time, because with multiple examples it gets too busy. The connections are for meet and great place. Change of function. Shape of object room plant. The material are wood and a lot of greenery with a stoke feeling. The Meaning of the room plant is calorify so the space has to be in a shape of a hart. Spot plan with a function that has to be thoughtful and make supplementary topics. Night/ day difference for the teahouse. Foil for feeling.
Ik ben begonnen met mijn gedicht hieruit kwam 1 woord regelmatig voor en is gelijk ook de kern van het verhaal. Het gaat hierbij om het woord a mighty heart hier kom ik later op terug. Omdat het gedicht origineel uit Japan komt en ik in een bijeenkomst plek wou maken waar mensen elkaar ontmoeten kwam ik al snel bij een Japanse thee huis. Omdat ik veel met natuurlijke materialen heb gewerkt en hiermee veder wilde werken heb ik bedacht dat mijn schaal een kamer plant moest zijn en hierbij heb ik ook niet los gelaten dat het over tea gaat dus vandaar de thee plant die verpot is in een thee pot. De materialen zijn hierdoor ook allemaal van natuurlijke materialen. Ook het machtige hart heb ik verder uit gewerkt bij mijn 10 vertalingen van het gedicht heb ik ook 1 hart gemaakt hier wou ik graag mee veder omdat die het meest weergeeft wat de essentie is van het verhaal, vandaar is de vorm een hart geworden.

Green East
Voor de opdracht van Green East heb ik een glazen dome ontworpen. en hierbij een toepassende inrichting voor gemaakt met een eigen gemaakte style guide. Deze ruimte moest toegankelijk zijn, met een innovatief tuin er om heen die ook ontworpen moest worden. Voordat er een nieuwe onderwijs ruimte geplaatst mag worden moet er eerst een bouwtekening aanwezig zijn met de juiste maatvoering. Met de aangetoonde eisen die in de
wet staan. en met een bouwvergunning.De doelgroep van Green East zijn nieuwsgierige en bevlogen studenten die meer willen weten over Green East.
Fablab
Als groepje zijn we bezig geweest met project Gamechanger. In deze periode heb ik een Fablab gemaakt waar de bezoekers hun eigen spel kunnen ontwerpen in ons Fablab. Wij hebben zelf ook een kaart spel en bord spel ontworpen die hierbij aansluit op het thema
van Gamechanger. Hierbij heb ik zelf ook nog even een maquette gemaakt van het gebouw zelf.
Stay Okey
Als groepje zijn we bezig geweest met project Gamechanger. In deze periode heb ik een Fablab gemaakt waar de bezoekers hun eigen spel kunnen ontwerpen in ons Fablab. Wij hebben zelf ook een kaart spel en bord spel ontworpen die hierbij aansluit op het thema
van Gamechanger.
Ik heb voor Stayokay een folder gemaakt met de eyecatcher van Den Haag die de bezoekers die overnachten is Stayokay echt moeten bezoeken.





























